Sample Projects - Scan to BIM Modeling
Scan to BIM Workflow
Scan-to-BIM (Building Information Modeling) is a technology-driven process that involves capturing precise measurements and data of existing physical structures using 3D laser scanning or similar technologies. This collected data is then used to create detailed and accurate digital representations as 3D BIM models. These models provide a comprehensive and visual representation of the building's geometry, components, and systems.








STEP 1
STEP 2
STEP 4
STEP 3
Scan to BIM Workflow
Scan-to-BIM (Building Information Modeling) is a technology-driven process that involves capturing precise measurements and data of existing physical structures using 3D laser scanning or similar technologies. This collected data is then used to create detailed and accurate digital representations as 3D BIM models. These models provide a comprehensive and visual representation of the building's geometry, components, and systems.








STEP 6
STEP 7
STEP 9
STEP 8






STEP 10
STEP 11
STEP 12
SCAN TO REVIT MODELLING
Scan to BIM has become a crucial tool in architecture, construction, and renovation projects. It offers several benefits, including:
Accurate As-Built Documentation: Scan to BIM ensures that the digital model closely matches the existing physical structure, allowing for accurate renovations, retrofits, or additions.






Improved Project Planning: Architects, engineers, and construction professionals can use Scan to BIM models to plan and design projects more effectively, reducing errors and conflicts.
Data-Rich Models: Scan to BIM models can incorporate valuable data about materials, systems, and equipment, facilitating maintenance and facility management.
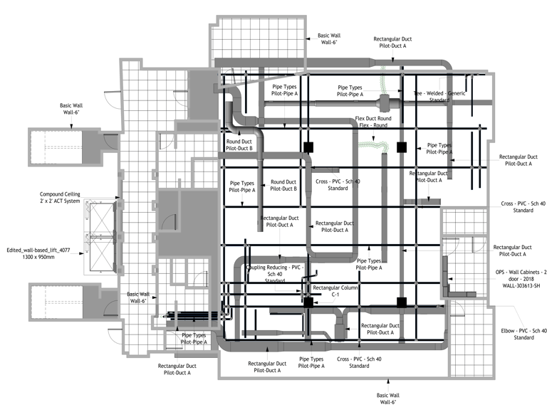
Construction Detail Drawings
Reduction in RFI's and Change Orders: Clear and accurate construction drawings minimize the need for Requests for Information (RFIs) and change orders, leading to cost savings and smoother project execution.
Visual Context: Detailed drawings can be placed within the context of the overall project model, helping construction teams understand how their work fits into the larger scope.
Accurate and Consistent Documentation: Construction drawings in Revit are dynamically linked to the model. Any changes made to the model automatically update the associated drawings, reducing errors caused by outdated information.
Improved Communication: Detailed drawings created in Revit facilitate clear communication between architects, engineers, contractors, and subcontractors by presenting information in a standardized and easy-to-understand format.


Construction Detail Drawings




Want Similar Services?
We have got you covered—feel free to share your specific requirements and expected deliverables with us.



BIMace delivers two core services for US contractors: Construction Estimation and BIM Modeling.
From accurate takeoffs to coordinated models, we support your project from bidding to execution.
OUR SERVICES
Digital Coordination (BIM)
Pre-construction Bid Support
Cost Planning & Estimation
GET IN TOUCH
Shahrah e Quaid-e-Azam Road Rahwali Cantt Gujranwala
info@bi-mace.com
+92 311 7676971


