Sample Projects - Steel Structure Modeling
Modelling Structure Elements
Through Revit, I create immersive and interactive 3D models that provide stakeholders with a virtual walkthrough of the proposed spaces. These models go beyond static images, allowing clients, collaborators, and team members to experience the design in a dynamic and engaging manner, fostering a deeper understanding of the project.








MODELLING STRUCTURAL ELEMENTS FLOOR WISE
OVERALL STEEL STRUCTURE 3rd DIMENSIONAL MODEL
Comprehensive Visualization and Detailing




Detailed models and drawings effectively communicate design intent to all stakeholders, including contractors, engineers, and clients, reducing the likelihood of misinterpretation.
Accurate Design Representation: Precise detailing ensures that the structural components in the model accurately reflect the intended design, reducing the risk of errors and discrepancies during construction.
Consistency: Consistently detailing ensure that all parts of the project adhere to the same standards, leading to a unified and cohesive final result.
Compliance with Codes and Standards: Precise detailing helps ensure that design adheres to relevant building codes, regulations, industry standards, reducing the risk of non-compliance issues.
EXTERIOR STUD WALL WITH STEEL BEAMS AND COLUMN
EXTERIOR STUD WALL AROUND OPENING DETALING
Comprehensive Visualization and Detailing




Reduced Rework: By providing comprehensive and accurate details, you can minimize the need for on-site adjustments and revisions, saving time and resources during construction.
Enhanced Visualization: Detailing allow contractors and construction teams to visualize how individual components come together to form the larger structure, aiding in construction planning.
Efficient Construction: Contractors can interpret and implement detailed drawings more efficiently, resulting in smoother construction processes and better project schedules.
INTERIOR STUD WALL WITH SHEATHING
INTERIOR STUD WALL AROUND OPENING DETALING


JOIST FLOOR SYSTEM
Comprehensive Visualization and Detailing




Accurate 3D Modeling: Revit enables precise 3D modeling of steel structures, ensuring that all components fit together seamlessly and reducing errors during fabrication and construction.
Improved Visualization: With 3D modeling capabilities, stakeholders can visualize the steel structure more clearly, enhancing design communication and decision-making.
Efficiency: Revit automates many tasks, such as generating steel framing plans, sections, and elevations, significantly reducing drafting time and increasing efficiency.
Collaboration: Revit provides a centralized platform where architects, structural engineers, contractors, and steel fabricators can collaborate in real-time, minimizing coordination issues and errors.
STUD WALL PLAN DETALING
STUD WALL DETALING


STUD WALL 3D VIEW DETALING
Comprehensive Visualization and Detailing




3D – VIEW FOR COLUMN BEAM AND COLUMN- FOOTING
COLUMN BEAM DETALING


COLUMN - FOOTING CONNECTION






COLUMN-BEAM CONNECTION


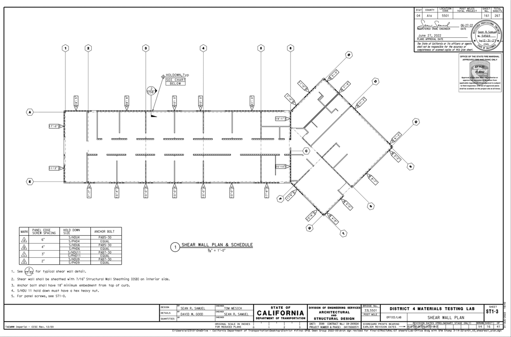
Construction Detail Drawings
Reduction in RFI's and Change Orders: Clear and accurate construction drawings minimize the need for Requests for Information (RFIs) and change orders, leading to cost savings and smoother project execution.
Visual Context: Detailed drawings can be placed within the context of the overall project model, helping construction teams understand how their work fits into the larger scope.
Accurate and Consistent Documentation: Construction drawings in Revit are dynamically linked to the model. Any changes made to the model automatically update the associated drawings, reducing errors caused by outdated information.
Improved Communication: Detailed drawings created in Revit facilitate clear communication between architects, engineers, contractors, and subcontractors by presenting information in a standardized and easy-to-understand format.


Construction Detail Drawings






Want Similar Services?
We have got you covered—feel free to share your specific requirements and expected deliverables with us.



BIMace delivers two core services for US contractors: Construction Estimation and BIM Modeling.
From accurate takeoffs to coordinated models, we support your project from bidding to execution.
OUR SERVICES
Digital Coordination (BIM)
Pre-construction Bid Support
Cost Planning & Estimation
GET IN TOUCH
Shahrah e Quaid-e-Azam Road Rahwali Cantt Gujranwala
info@bi-mace.com
+92 311 7676971


